名称:活接
承压等级:【1.0MPa】
颜色:灰色
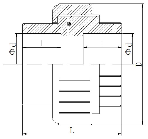
产品规格图解:
其中“L”管件长度,“l”表示承插口长度,“Φd”表示管件公称内径,“ΦD”管件公称外径,1.0MPa=10公斤
PVC-U管件是一种硬质聚氯乙烯材料,它是由聚氯乙烯树脂与稳定剂、润滑剂等以一定的比例混合注塑成型的。产品外表光滑,符合GB/T10002.1-2006的标准。
产品包装介绍:
活接的特点及用途:
1. 产品经过热塑处理,最高可在流体温度60C°的环境下正常工作。
2.主要用于管材之间的连接,连接后管件一端可进行拆卸。
3.管件的连接采用螺纹/胶粘式,便于安装,密封性可靠。
4.管件长时间使用内壁不结垢、不阻塞,更卫生。
※若购买此种管件用于管材连接,需同时购买相配套的生料带、PVC胶水(胶合剂),具体安装方式及注意事项详见《粘接式PVC管件安装方法》。